Interior of livingroom and dining room
Description
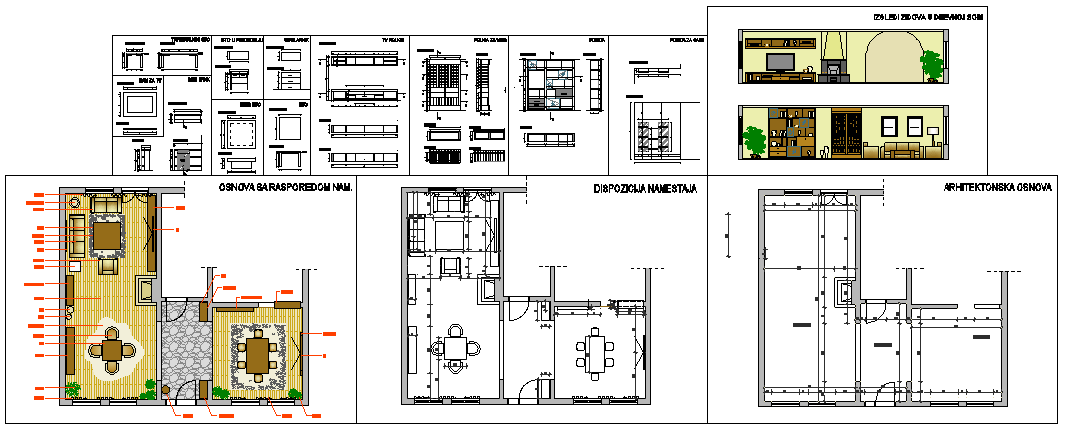
This file is a interior drawing of Living room design and dinning room design drawing with elevation modern style.
File Type:
DWG
File Size:
792 KB
Category::
Interior Design
Sub Category::
Drawing And Living Area Interior Design
type:
Gold

Uploaded by:
Umar
Mehmood
