Wall Mounting Electrical Fixing Drawing DWG File
Description
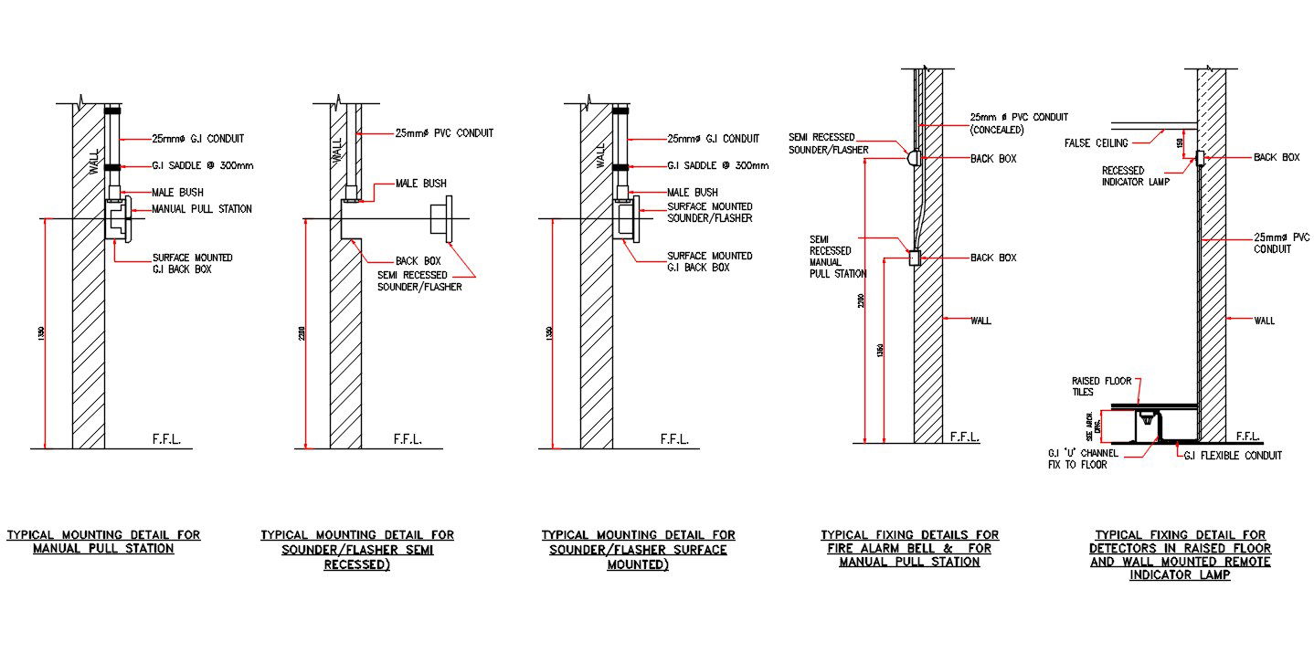
All drawings shall be read in conjunction with the relevant sections of the electrical services/specification in the tender document. find here typical mounting detail for manual pull station, sounder/flasher semi recessed), fire alarm bell & for manual pull station and typical fixing detail for detectors in raised floor and wall mounted remote indicator lamp. download free electrical wall mounted wiring and board detail DWG file
Uploaded by:

