Earthing Test Link Connection Reinforcement Bar Drawing Free DWG File
Description
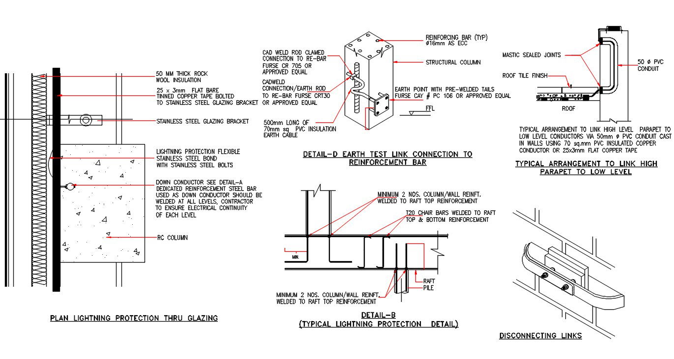
the earthing connection lighting protection cad drawing includes earth test link connection to reinforcement bar, typical earth points arrangements, disconnecting links for arrangement to link high parapet to low level, and earth point with pre-welded tails furse cay. the wires shall be left in all conduit runs for other services, that is between ahu's/fcu's and thermostats etc. and these should be in accordance with the drawings. download free earthing testing CAD drawing DWG file.
Uploaded by:

