Institute Building Master Plan Drawing Free DWG File
Description
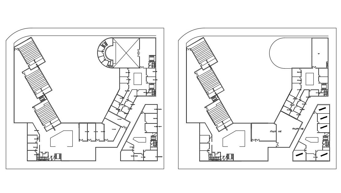
2d AutoCAD drawing of institute building master plan ground floor and first floor plan which includes exhibition auditorium hall, teaching class room, carving workshop, handcrafted teaching room, restaurant, stored, a kitchen and reception area. download free institute project master plan DWG file.
Uploaded by:

