Meeting Room ElevationCAD Design Plan for Architects and Interiors
Description
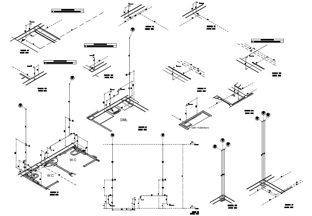
AutoCAD drawing of house plumbing pile isometrics elevation design that connected the toilet, bathroom, and kitchen. also has water and drainage piping flow transposition, the result can often be visualized as an offset view from overhead.
File Type:
DWG
File Size:
310 KB
Category::
Dwg Cad Blocks
Sub Category::
Autocad Plumbing Fixture Blocks
type:
Free
Uploaded by:

