Bank Ground Floor And First Floor Plan With Furniture Layout Drawing DWG File
Description
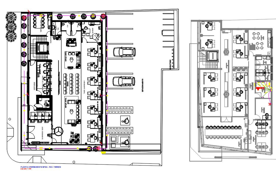
The bank project ground floor and first floor layout plan furniture drawing includes retail sales department, back-office department, cash counter, outside ATM, transition zone, pantry, store room service desk, meeting room, work desk, and manager cabin. also has connect to grounding
medication detail. download AutoCAD drawing bank project DWG file.
Uploaded by:

