Architecture Floor Plan of College Project AutoCAD File
Description
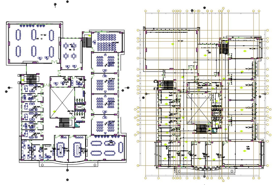
The technical college project floor plan with center line plan and dimension detail shows class rooms, meeting room, library, computer lab, research center room, cafeteria, professor cabins, wide hall and principal office with all furniture design. download architecture college layout plan drawing DWG file.
Uploaded by:

