4 Storey School Floor Plan Drawing AutoCAD File

4 Storey School Floor Plan Drawing AutoCAD File
Profile

Uploaded by:

Komal

Description
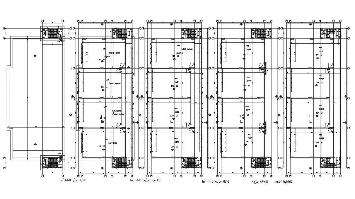
The school project 4 storey floor plan with center line and dimension detail also has class rooms and both side staircase. download free school project drawing DWG file
Profile

Uploaded by:

Komal

find Latest

Related Files

WhatsApp Chat