Exothermic Welding CAD Drawing Free download DWG File
Description
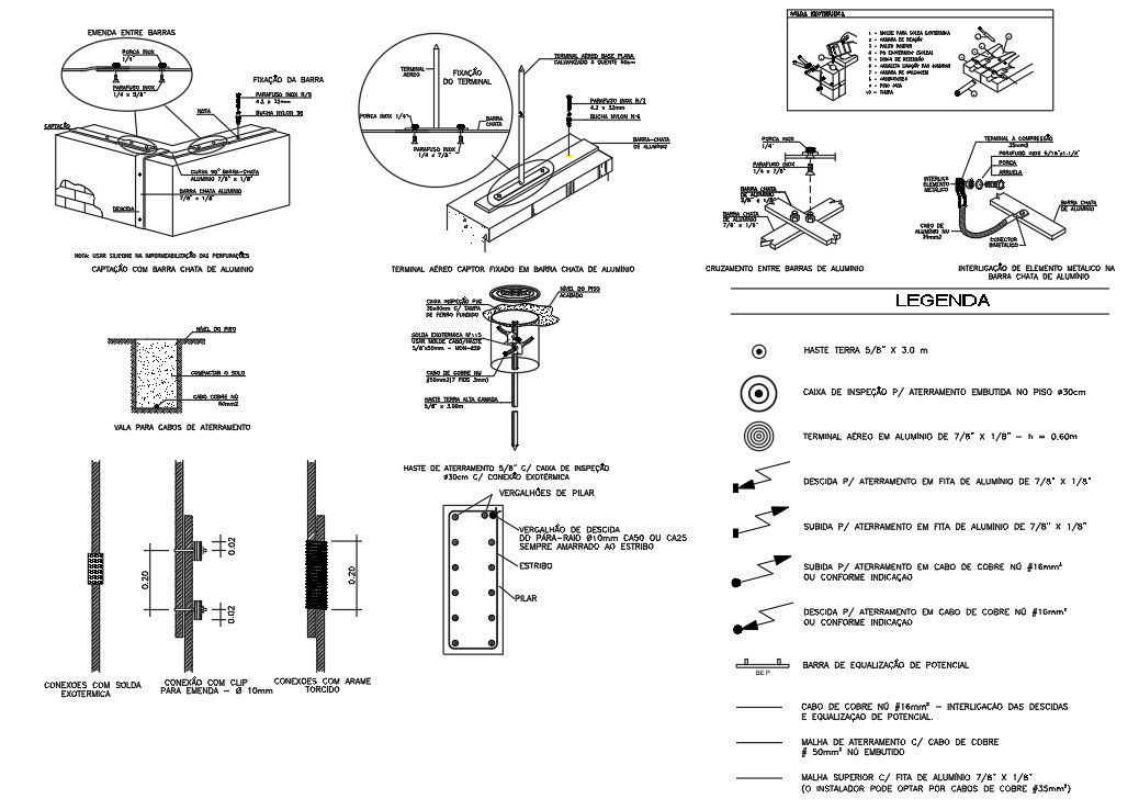
22 CAD drawing of Exothermic Welding detail with description detail shows capture with aluminum bar, amendment between bars connections with exothermic welding crossing between aluminum bar, interconnection of metallic element in aluminum bar that use silicone in waterproofing drills. download free CAD drawing DWG file and get more AutoCAD file on cadbull.com
File Type:
DWG
File Size:
329 KB
Category::
Construction
Sub Category::
Concrete And Reinforced Concrete Details
type:
Free
Uploaded by:

