College Floor Plan With Center Line Drawing DWG File
Description
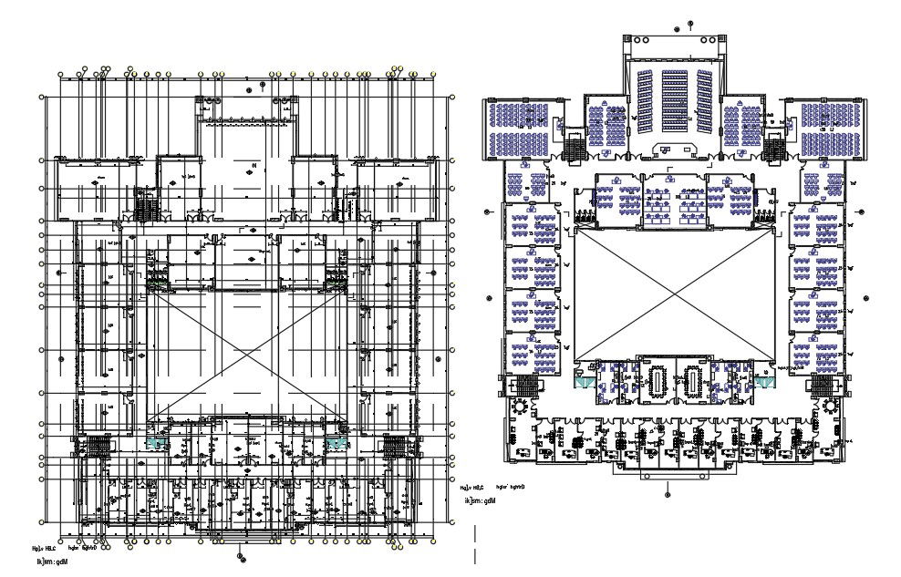
The architecture college floor plan with working center line plan with dimension detail. also has furniture layout which shows class rooms, meeting room, library, computer lab, research center room, cafeteria, professor cabins, auditorium hall and principal office with all furniture design. download architecture college layout plan drawing DWG file.
Uploaded by:

