Door Installation Plan And Elevation Drawing Free DWG File
Description
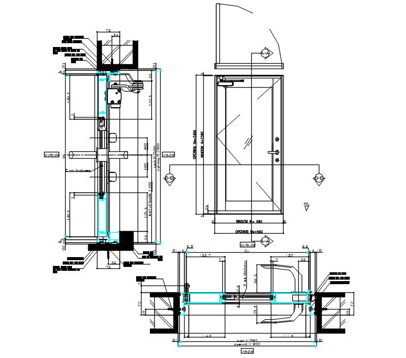
AutoCAD drawing of door installation plan and section drawing which is shows fixing with wall and also has front elevation design of door. download free door fixing detail DWG file.
Uploaded by:

