25X62 Feet West Facing House Ground Floor Plan DWG File
Description
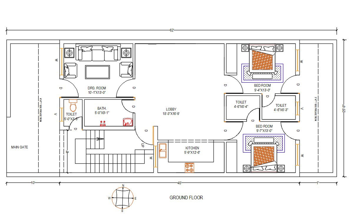
The west facing direction residential house space planning ground floor plan with furniture drawing includes 2 bedrooms with an attached toilet, kitchen, lobby, bathroom, drawing room, and in side staircase. Also has door and window marking detail. Download 1550 square feet plot size house plan drawing DWG file
Uploaded by:

