South Facing 2 BHK House Floor Plan AutoCAD Drawing DWG File
Description
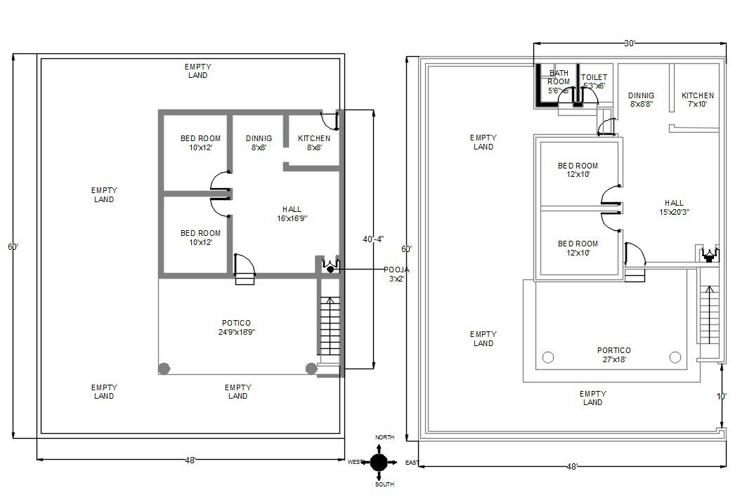
60X48 feet plot size of architecture house floor plan drawing that shows 2 bedrooms, hall, dining area, bathroom toilet and car porch. also has empty land detail. download house floor plan DWG file.
Uploaded by:

