Foundation And Plinth Beam Plan AutoCAD Drawing DWG File
Description
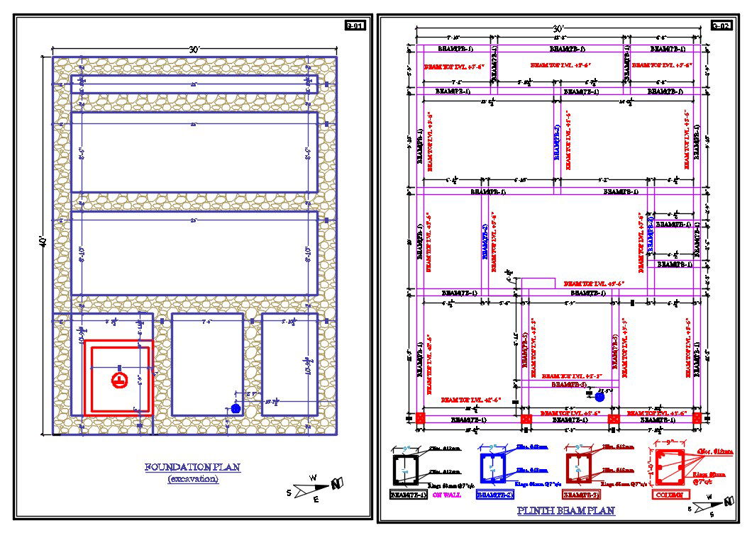
The RCC construction drawing includes foundation plan and plinth beam plan detail that shows all dimension and wall column with slab structure detail. download 30X40 feet house construction RCC column foundation plan drawing DWG file.
Uploaded by:

