Uploaded by:
Mehmood
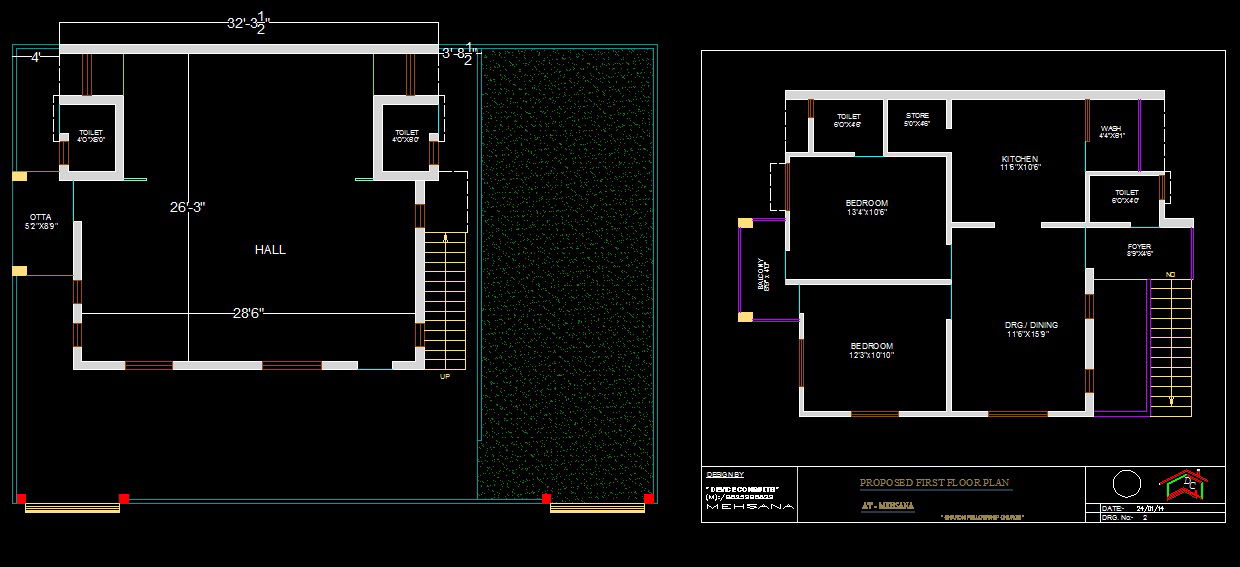
Layout plan of a bungalow CAD drawing in AutoCAD format featuring detailed room layouts, elevation, and structure design, perfect for residential architecture projects.
File Type:
File Size:
Category::
Sub Category::
type: