60X45 Architecture 4 BHK House Floor Plan With Furniture Layout Drawing AutCAD File
Description
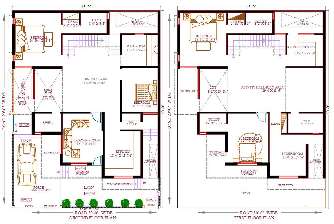
60X45 architecture house ground floor and first floor plan CAD drawing includes 2 master bedroom, 12'X15' drawing room, modular kitchen, activity hall, prayer room, 14'X22' car parking porch and front side lawn. also has same as above first floor plan design with measurement and interior furniture layout drawing DWG file.
Uploaded by:

