21'X38' House Plan With Sectional Elevation DWG File
Description
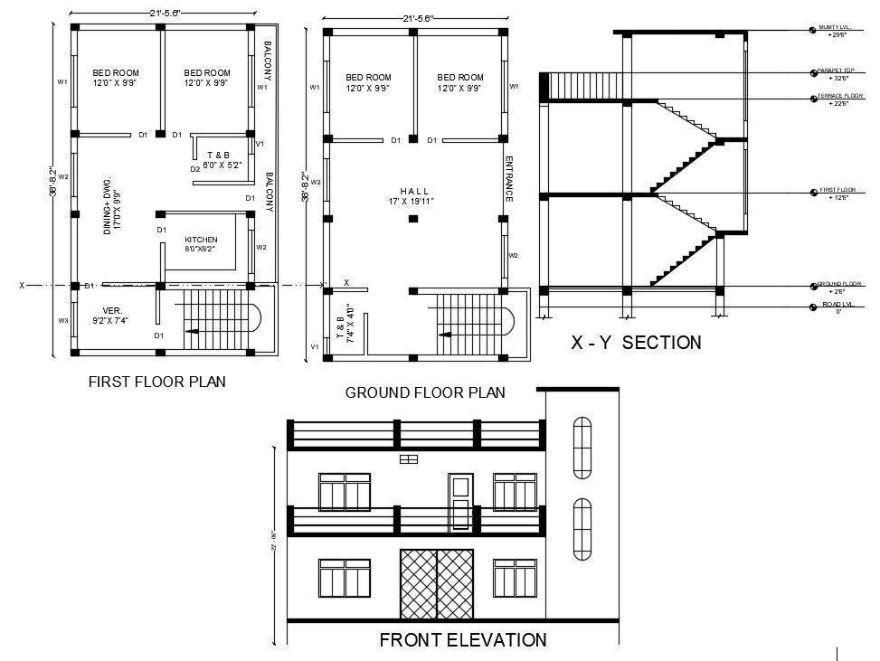
21X38 feet plot size for residence house ground floor plan and first-floor plan includes 4 bedrooms, dining cum drawing room, kitchen, 17X20 wide hall and staircase. the additional drawing such as column layout plan. also has 2 storey house building section and elevation design. download 4 BHK house AutoCAD drawing DWG file.
Uploaded by:

