House Working Plan Plan And Column Footing Foundating Foundation DWG File
Description
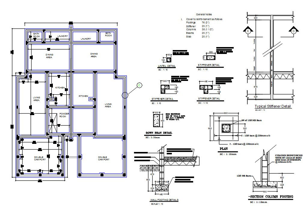
Twin house plinth beam plan CAD drawing with dimension detail also has section column footing, wall footing, column and beam plan. Download RCC house construction plan DWG file. Thank you for downloading AutoCAD DWG drawing file from the our website.
Uploaded by:

