North Facing 3 Storey House Floor plan Drawing DWG File
Description
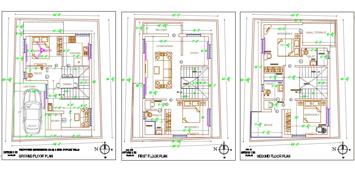
800 square feet plot size for 3 storey floor level house furniture layout plan CAD drawing includes 4 bedrooms with attached toilet, drawing room, living room, study room, small open terrace, balcony sitout, and car parking porch. the additional drawing such as a all measurement and description detail for easy to understand this project. download 4 BHK north facing direction house plan DWG file.
Uploaded by:

