Flooring plan drawing Given in this 2d autocad drawing, Download the Autocad DWG drawing file.
Description
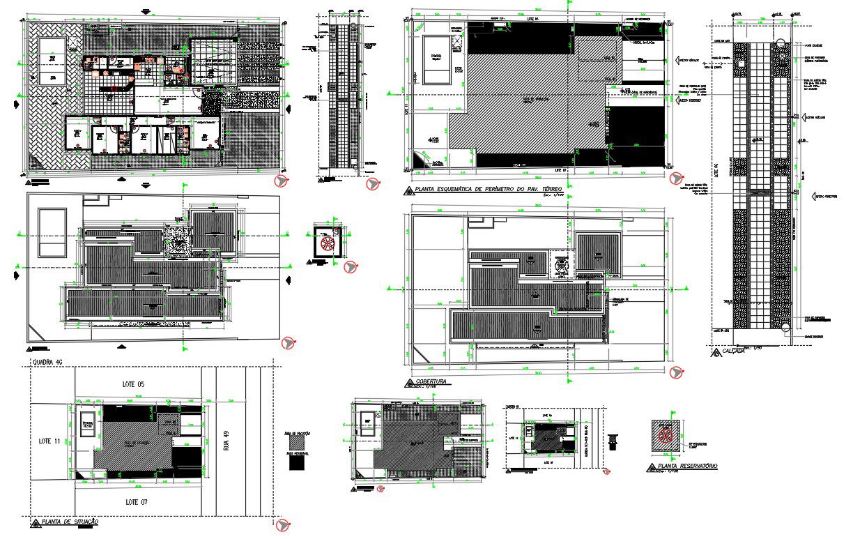
In this 2d autocad drawing shows Flooring detail of residence project.schematic plant of perimeter of paving on ground floor plan. Detailed drawing of flooring section.Permeable flooring area in front yard of residence and a detailed drawing of it. Also certain detail of galvanised steel gutter in this drawing.Download the Autocad DWG drawing file.
Uploaded by:

