Projects
Complete Residential Design AutoCAD Drawing Set with Full Layouts
MORE DETAILS
House Design DWG CAD Plan with Bedrooms Lounge Kitchen and Terrace
Spacious House CAD DWG Plan with Bedrooms, Lounge Kitchen Lawn
AutoCAD Residential Plan with Accurate Room, Kitchen, and Bath Sizes
School Building AutoCAD Plan with 48m2 Classrooms and Court Layout
3BHK Apartment Layout Plan Tower C The Elegencia With Balconies
Luxury House Plan DWG Ground and First Floor Layouts for Architects
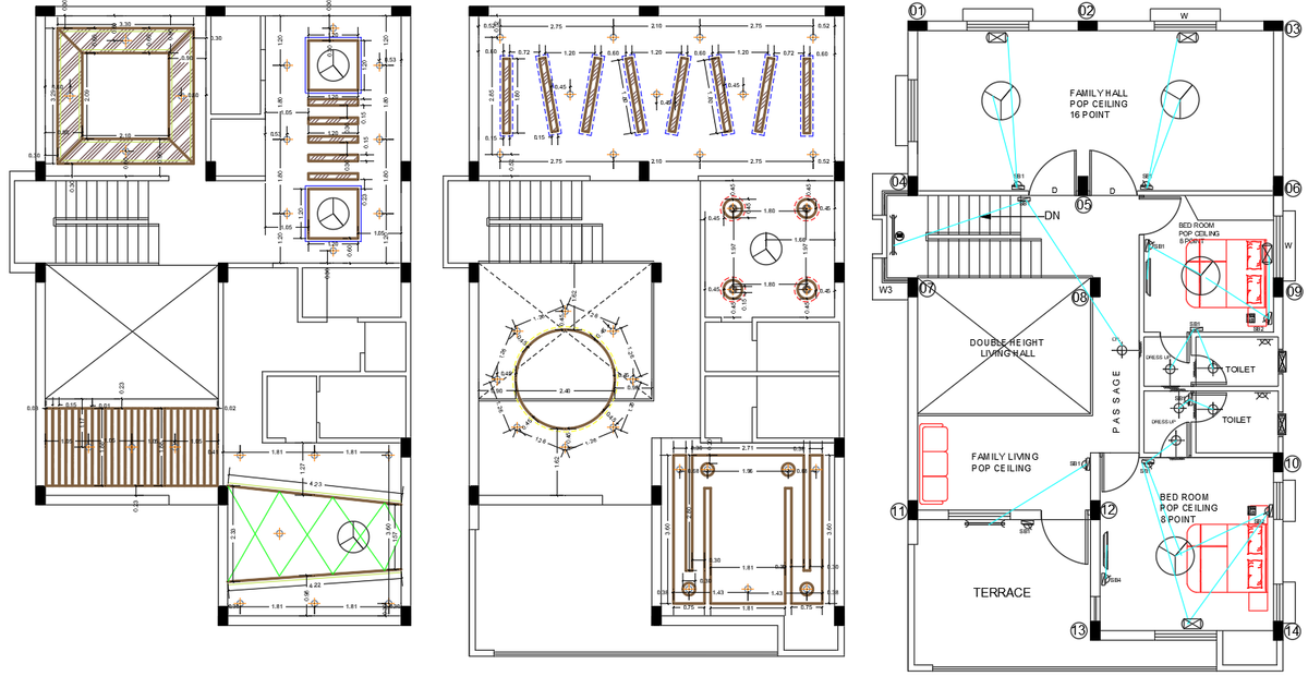
AutoCAD Residential POP Ceiling and Lighting Layout for First Floor
Angled Sofa AutoCAD Design and Structural Drawing–Lounge SX-06
Round Dining Table AutoCAD Drawing – Custom Furniture DWG Set
Aluminum Window Design with Frame and Section Details
Manhole and Pipe Bedding Construction Details in DWG File