Apartment Free construction detail DWG file
Description
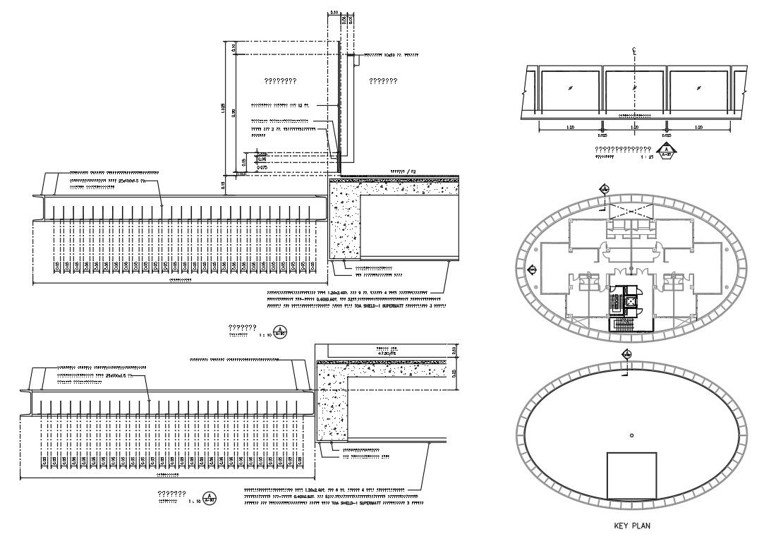
Ceiling panel, Weathered 1.20x2.40 m., 9 mm. Thick, 4 sloping edges, smooth perforated Pro-stripe metal frame 0.40X0.60 m. 52 mm. Thick with all attachments Use the elephant brand products to paint TAO shield-1 super matte at least 3 times. Painted steel frame, size painted, see structural engineering L-shaped alumina, size 25x100x1.5 mm. Apartment construction detail DWG file
Uploaded by:
