Reception Counter Plan and Elevation in DWG CAD Drawing
Description
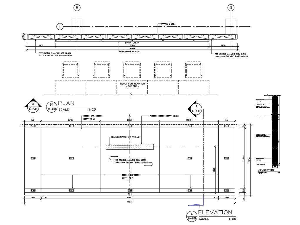
The corporate reception area CAD drawing shows counter deck plan and elevation design which is mostly use in office, hotel and clubhouse. download reception counter plan design AutoCAD file.Thank you for downloading the AutoCAD DWG file and other CAD program from our website.
Uploaded by:

