Office Ceiling With Electrical Layout Plan Drawing DWG File
Description
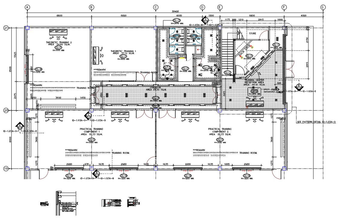
The office training center layout plan has room, reception desk and toilet which consist
galvanized steel frame ceiling gypsum board panel thickness 9 mm. smooth plastering
dashed line installation of curtains, lamp installation position down light model and model name according to the specified list and fluorescent light installation location in the room training room refer to the electrical system design. download ceiling false light design DWG file.
Uploaded by:

