Office Pantry Plan With Elevation Drawing DWG File
Description
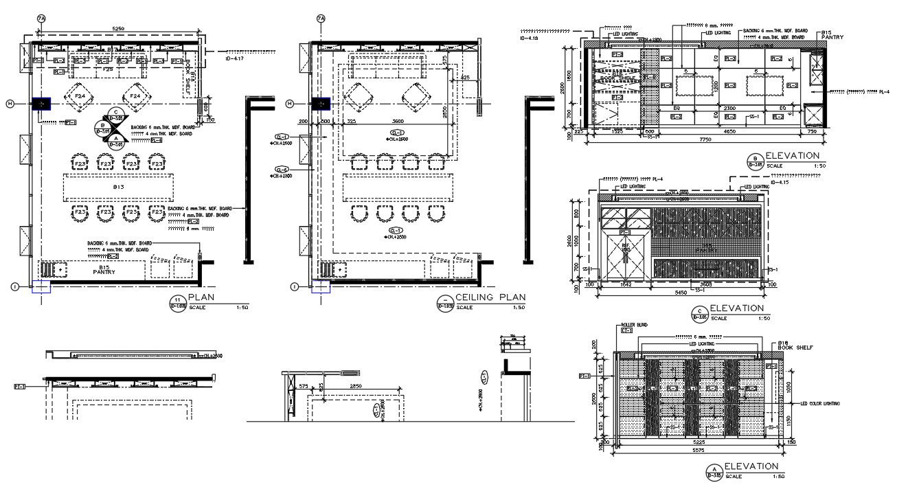
The office pantry furniture layout plan CAD drawing includes dining table, platform, and sofa design. also has floor plan, ceiling plan and all side elevation design with interior furniture detail. download office pantry plan drawing DWG file.
Uploaded by:

