Office Meeting Room Interior Drawing Plan And Elevation Design DWG File
Description
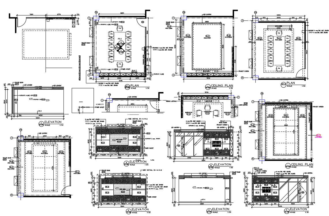
The corporate office meeting room layout plan, ceiling plan and elevation drawing that shows conference table, wall painted, white board and led light with all dimension detail. download office meeting room interior furniture drawing DWG file.Thank you for downloading the AutoCAD file and other CAD program from our website.
Uploaded by:

