Office Interior Furniture Drawing Plan And Elevation DWG File
Description
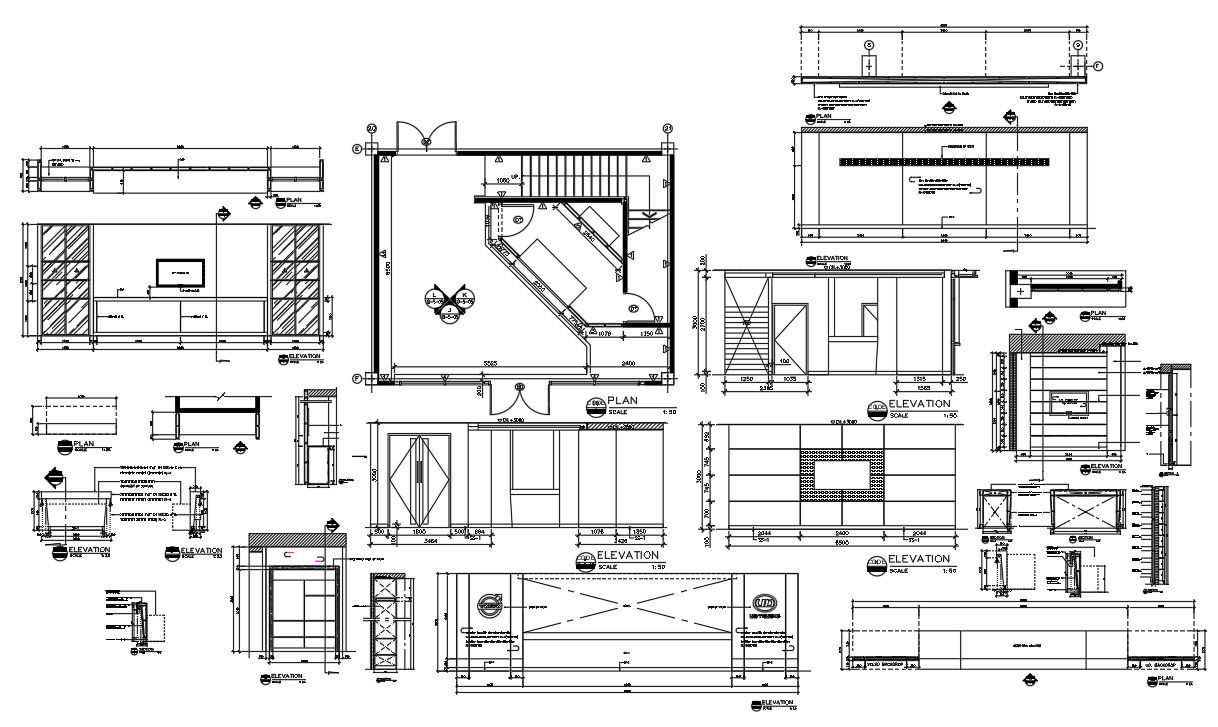
the corporate office interior furniture CAD drawing includes reception counter, welcome desk, tv unit and partition cabins which consist patch line showing installation location equipment by supplier, top 1"X2" solid wood frame, MDF paneling, 6 mm thick, laminated (dark gray) stainless steel hairline cupboard. the CAD drawing present furniture plan, section and elevation design. download office furniture interior design DWG file
Uploaded by:
