Public Toilet Plan And Section Drawing DWG File
Description
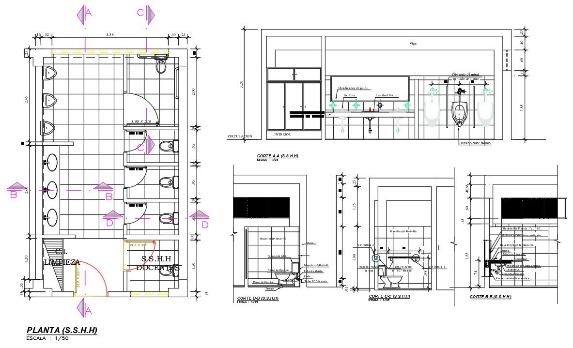
The public Toilet CAD drawing shows layout plan and sectional elevation design with different side view which consist Anodized Aluminum Molding Majolica coating Taps, Cement mortar, Soap dispenser, Taps, wash basin, toilet tub, and urinal with all dimension detail. also has sanitary ware installation drawing DWG file.
Uploaded by:

