Kitchen platform With Sink Installation CAD Drawing DWG File
Description
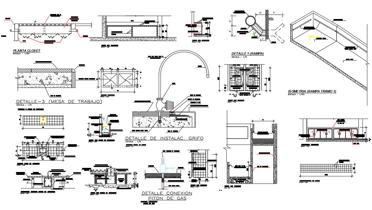
The kitchen platform CAD drawing includes plan, front elevation design and section drawing which consist gas pipe line, sink with tap installation with all description and dimension detail. download platform CAD drawing DWG file.Thank you for downloading the AutoCAD file and other CAD program from our website.
Uploaded by:
