House Plan With Truss Roof Building Elevation Design DWG File
Description
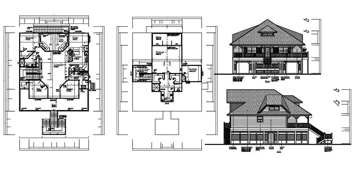
The Residence house ground floor and first floor layout plan CAD drawing includes 2 bedroom, kitchen, dining area, patio, laundry area, and gallery. also has front and side view of building elevation design which consist truss span roof detail. download AutoCAD house plan drawing DWG file.
Uploaded by:

