68'X90' Architecture House Ground Floor And First Floor Plan Drawing DWG File
Description
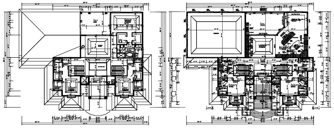
68'X90' Architecture house ground floor and first floor layout plan CAD drawing consist 4 bedrooms, foyer area, double height living room, modular kitchen, dining area, patio, balcony, deck area and gym. download the luxurious house plan CAD drawing DWG file that use for your suitable land property.
Uploaded by:

