36'X50' House 2 BHK Plan CAD Drawing DWG File
Description
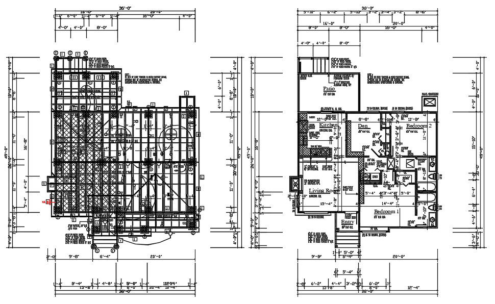
36X50 feet house ground floor plan CAD drawing includes 2 bedrooms, kitchen, den, living room, patio and main entry with dimension detail. also has wooden slab plan with electrical layout drawing with dimension. download 2 BHK single storey house plan drawing DWG file.
Uploaded by:

