Wall detail elevation given in this 2d autocad drawing.Download 2d autocad drawing file.
Description
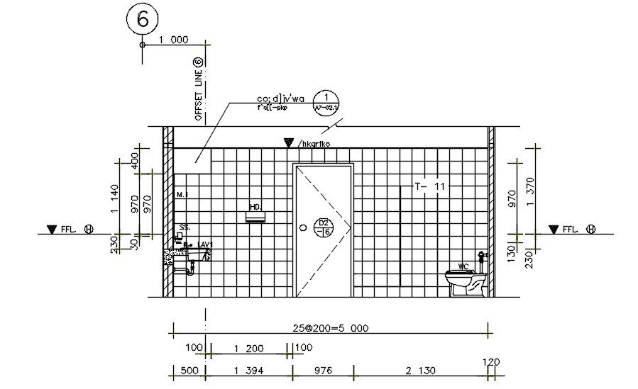
This drawing presents Wall detail elevation. This 2D Autocad drawing shows sectional elevation detail. Dimensions detail and naming detail in this drawing. In this drawing with tile pattern and Senators side elevation of the block. Download this 2d AutoCAD drawing.
Uploaded by:

