106'X68' Architecture House Ground Floor Plan CAD Drawing
Description
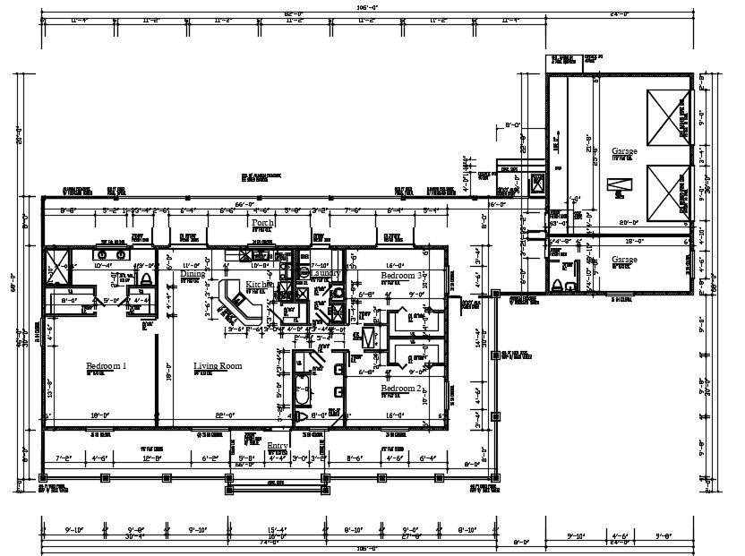
106X68 feet architecture house ground floor plan CAD drawing includes 3 bedrooms with an attached toilet, kitchen, dining area, living room, main entrance lobby, porch area and car parking garage with all dimension detail. download 7200 square feet 3 BHK house layout plan DWG file. Thank you for downloading the AutoCAD file and other CAD program from our cadbull.com website.
Uploaded by:

