76'X78' AutoCAD House 3 BHK Plan With Roof CAD Drawing DWG File
Description
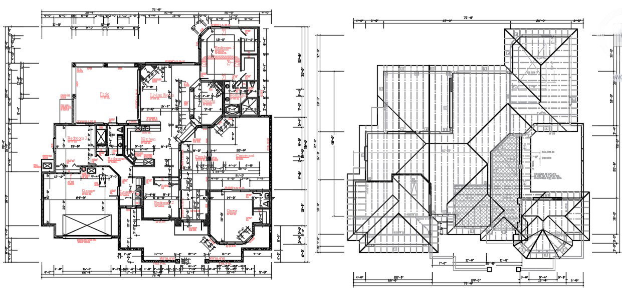
76'X78' FT house ground floor layout plan CAD drawing includes 3 bedrooms with attached toilet, kitchen, living room, court yard, guest room, patio, dining room, porch and 20'X24' car parking garage with all dimension detail. also has truss roof plan design. download 6000 square feet 3 BHK house layout plan CAD drawing DWG file.
Uploaded by:

