3 BHK House Ground Floor And First Floor Electrical Layout Plan DWG File
Description
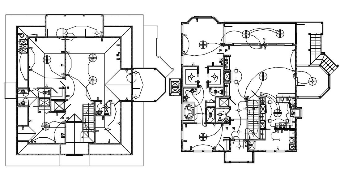
the AutoCAD drawing 3 BHK house ground floor and first floor electrical layout plan which consist wiring with all light fixtures shown centered on reflected ceiling plan to be
located centered on site, some light fixtures to have dimmer, confirm with interior design
consultant prior to switches installation detail. download 4500 square feet house electrical drawing DWG file. Thank you for downloading the AutoCAD file and other CAD program from our website.
Uploaded by:

