Building Elevation details are given in this AutoCAD DWG 2D Drawing File. Download now.
Description
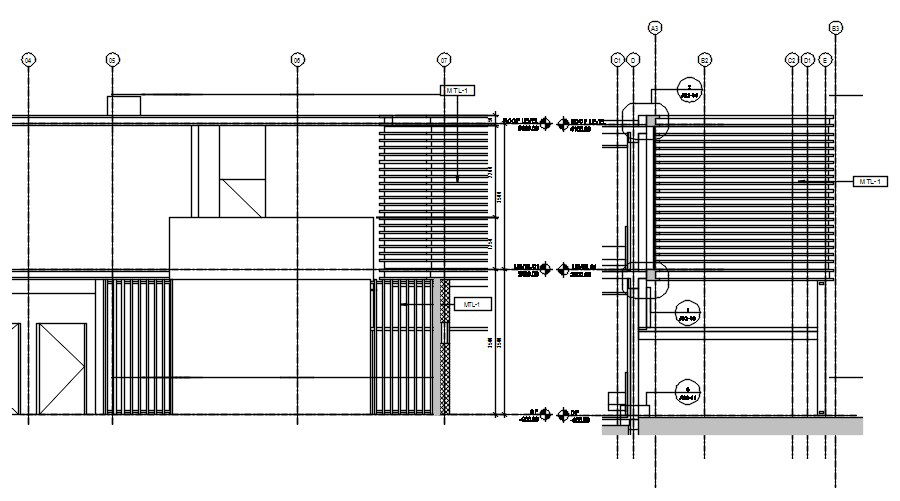
Building Elevation details are given in this AutoCAD DWG 2D Drawing File. this file, the Grill design, staircase, door, and windows were clearly shown. The section details were also are given clearly in this drawing. Download the AutoCAD DWG file now. Thanks for downloading the file and another CAD program from our website.
Uploaded by:

