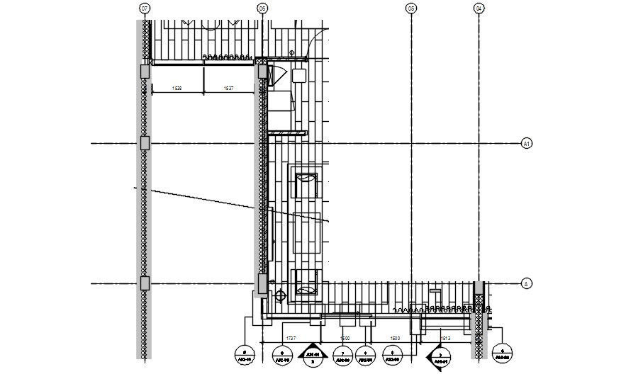
Section of wall facade detail elevation autocad file.Download this 2d autocad file.
Description
Walls section facade detail elevation Autocad file.reinforcement detail, scale detail, pad footing detail, slab detail, floor level detail, landscaping plants detail, hatching detail, cover detail, cover detail, concrete masonry detail, etc. Download this 2d AutoCAD file.
Uploaded by:
