staircase Plan And Section Drawing DWG File
Description
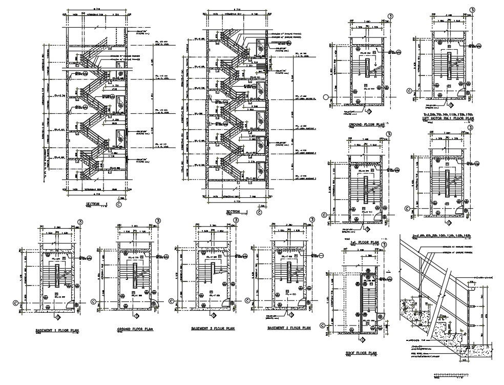
Government Lottery Office Ministry of Finance building staircase plan, section and elevation design with all dimension detail which consist trade and rising numbers are mentioned in this section drawing. Thank you so much for downloading DWG file from our website.
Uploaded by:

