AutoCAD 2D of Section Plan of a CW waste Pipe . Download the AutoCAD DWG file.
Description
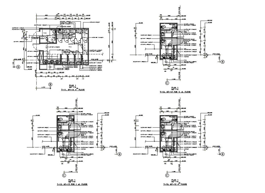
The CAD blocks describing complete drainage system showing the location of supply, floor drain basement plan. AutoCAD DWG file showing the Key Plan of the WC, HWS and Vent pipe Plumbing section and its Mechanical Basement Plan.The Floor trap with required pipe size is mentioned. Download the file from our Website.

Uploaded by:
Neha
mishra

