children room layout plan given in this file.Download the AutoCAD DWG file now.
Description
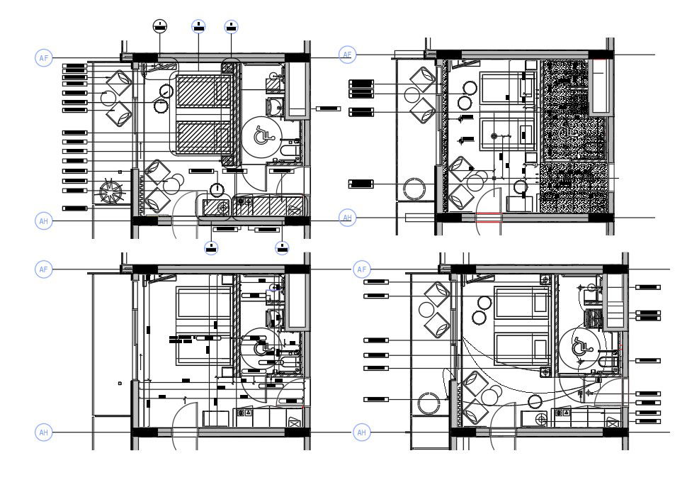
Children room layout plan drawing in AutoCAD file. This file includes the detailed layout plan of the children room with two single beds, a side unit, a storage unit, a wardrobe, plantation detail, direction indicator, dimensions, etc. Download the AutoCAD DWG file now.
Uploaded by:

