Toilet detail of corporate building given in this autocad drawing file . Download 2d autocad drawing file.
Description
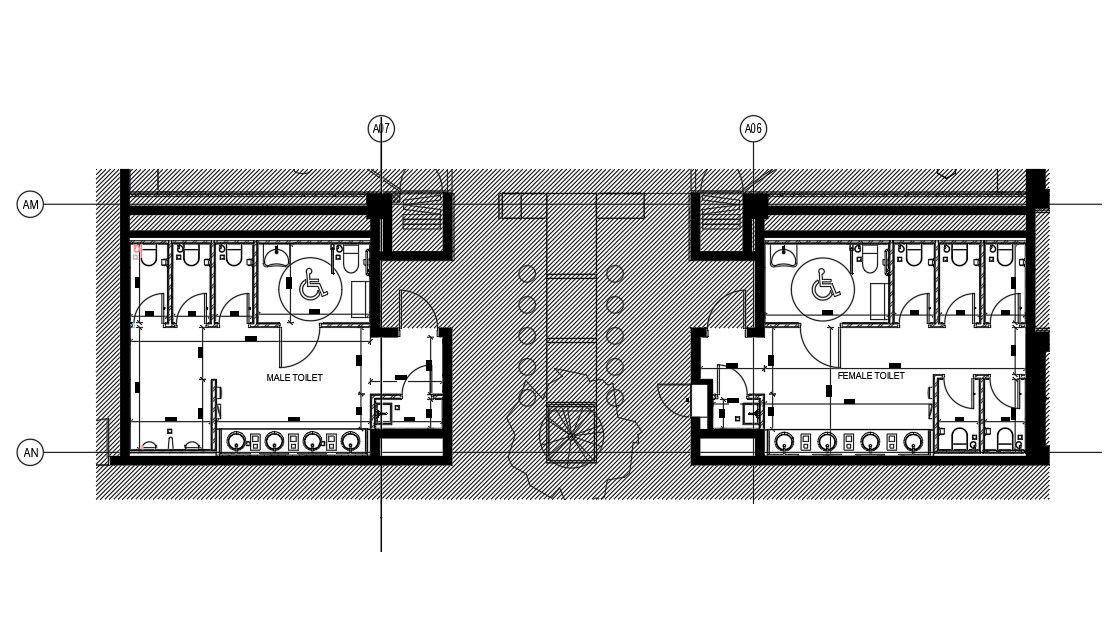
Toilet detail of corporate building given in this AutoCAD drawing file. in this drawing, you will have separate gents loo and ladies loo and each has sanitary blocks.this can be used for architecture drawing and interior drawing. Download the 2d AutoCAD drawing file.
Uploaded by:

