Free Download Staircase Plan With Section Drawing DWG File
Description
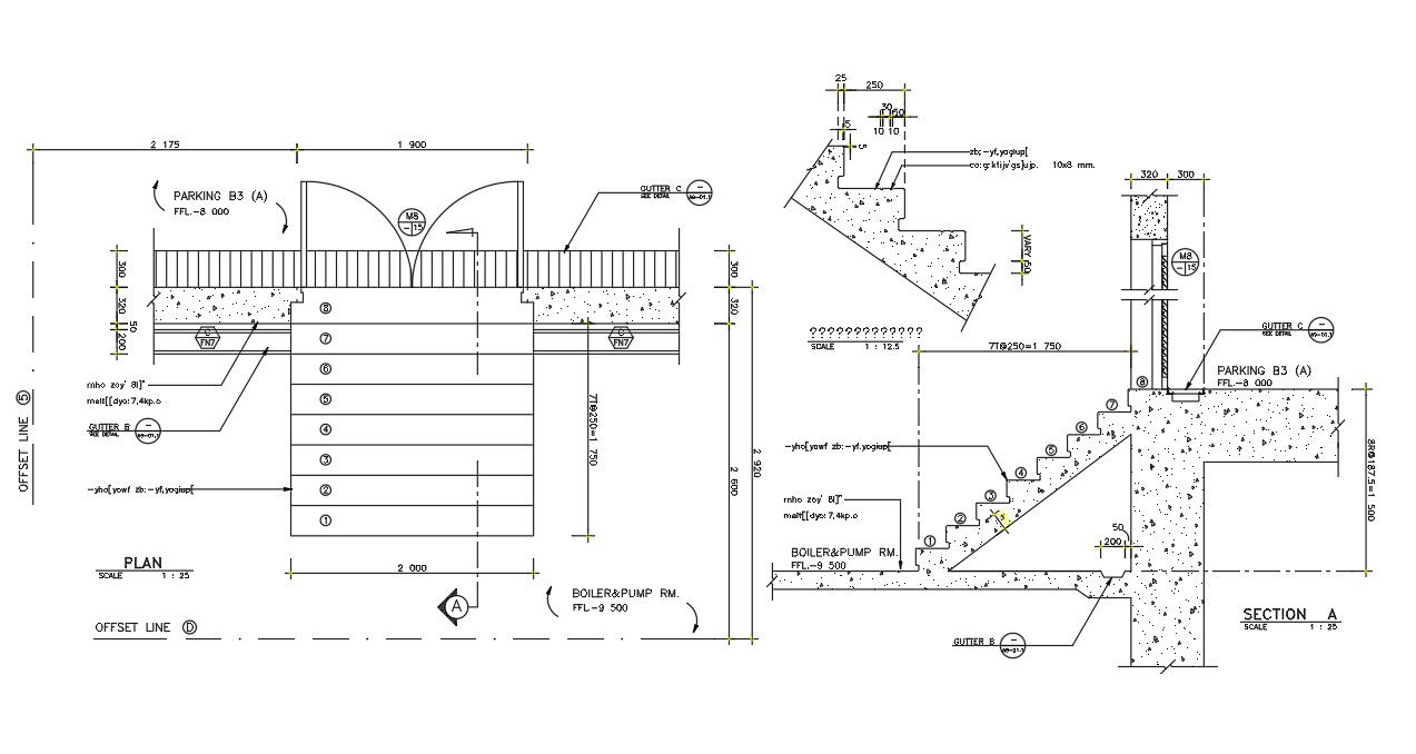
the civil engineer detailed drawing of staircase section and top view plan. The RCC concrete trade and rise step with measurement is mentioned clearly in this drawing. Download the AutoCAD DWG file. Thank you so much for downloading DWG file from our website
Uploaded by:

