Hospital Bedrooms Electrical Floor Plan CAD Drawing DWG File
Description
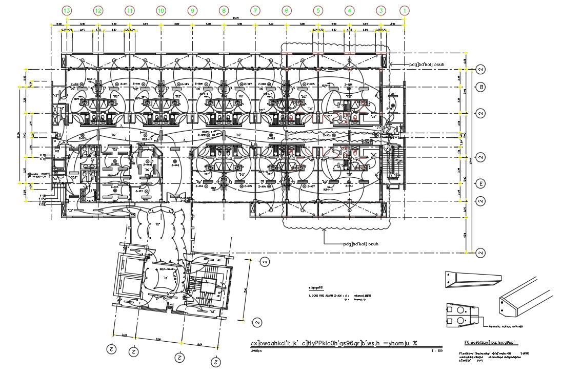
The hospital bedrooms floor plan CAD drawing with electrical layout design which consist fixtures shown centered on reflected ceiling plan to relocated centered on site, some light fixtures to have dimmer, confirm with interior design consultant prior to switch installation.
this drawing is verity all dimensions on site only figured dimensions and grid line are to be worked from. the discrepancies reported to the architect or engineer concerned before further action. download hospital bedrooms floor plan project DWG file.
File Type:
Autocad
File Size:
189 KB
Category::
Architecture
Sub Category::
Hotels and Restaurants
type:
Gold
Uploaded by:

