MDP And EDP Layout Drawing Free Download DWG File
Description
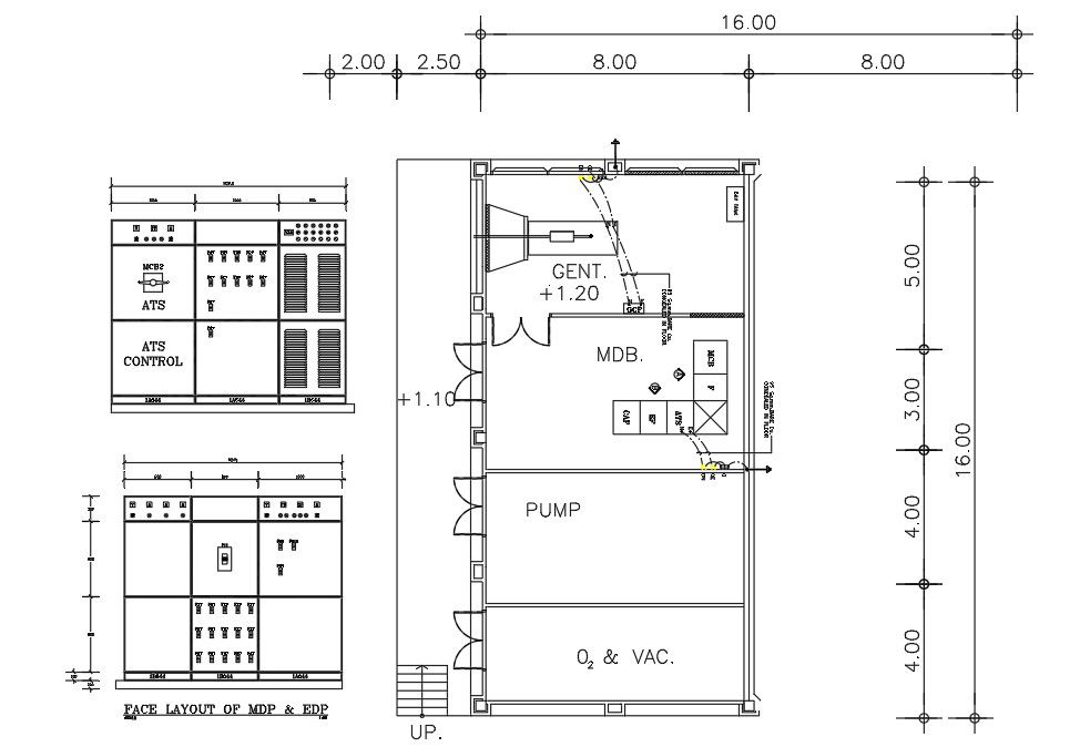
2d CAD drawing of (ATS) automatic transfer switch control design that uses an alternator and battery-charging device and also make sure tuned off before battery. download free DWG file of electronic controls contain system CAD drawing. Thank you for downloading the AutoCAD drawing DWG file and other CAD program files from our cadbull website.
Uploaded by:

