This drawing specified hotel autocad file. Download this 2d AutoCAD drawing file.
Description
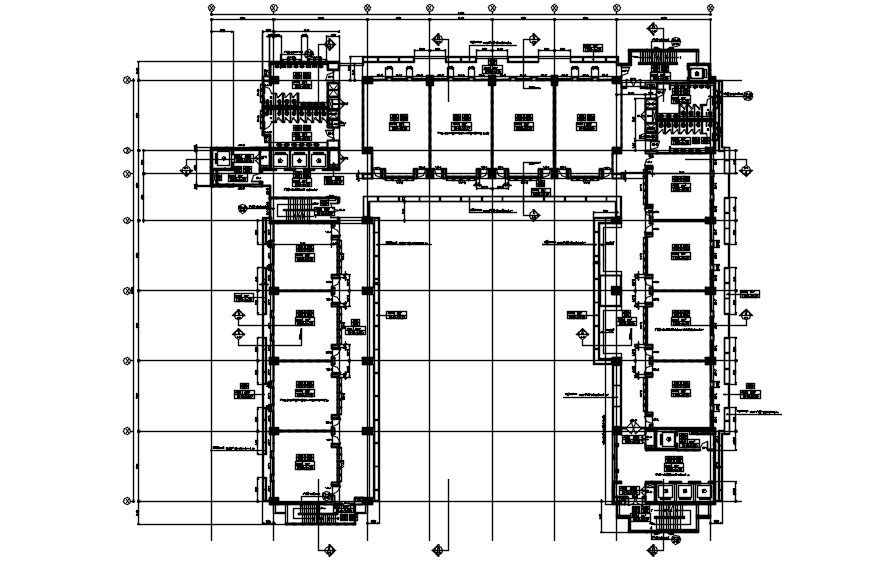
This drawing specified a hotel AutoCAD file. huge courtyard and Different departments likewise, rooms services, and utilities with detail naming and dimensions details given in this cad drawing file.this can be used for architecture and working drawing. thank you for download this 2d AutoCAD drawing file.
Uploaded by:

