This cad file about services detail and staircase detail. Download this 2d autocad drawing file.
Description
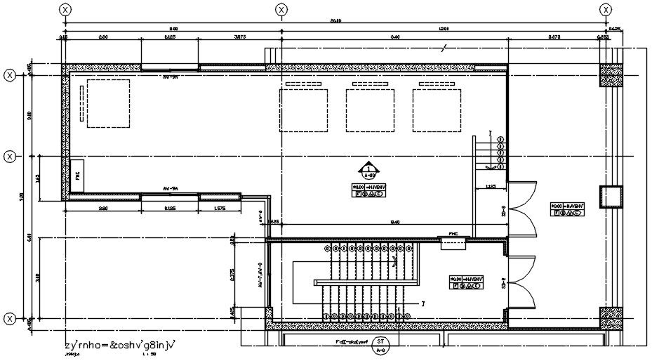
This cad file about services detail and staircase detail. in this drawing, you will have staircase detail with door window detail and dimensions. This can be used for architecture and working drawing detail. thank you for Downloading this 2d AutoCAD drawing file.
Uploaded by:

