Commercial Building Staircase Detail DWG Drawing
Description
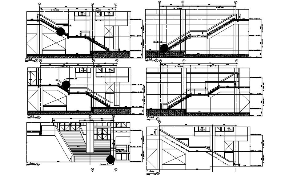
Commercial building staircase detail in this 2d AutoCAD drawing file. the drawing consists of a parapet wall also mentioned dimensions detail. This can be used for architecture drawing and working drawing. thank you for using this cad block from the cadbull website. Download this 2d AutoCAD drawing file.
Uploaded by:

