Foundation drawing details specified in this cad file. Download this 2d autocad drawing file.
Description
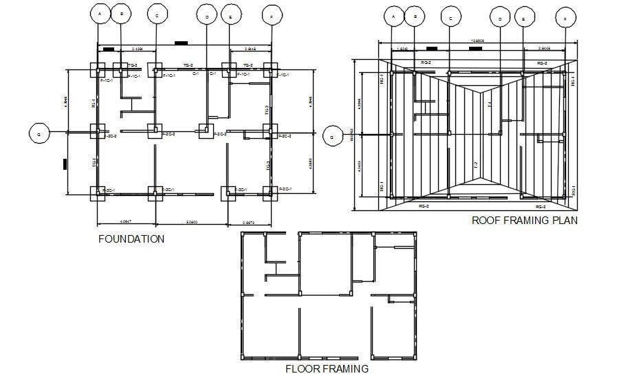
Foundation drawing details specified in this cad file. In this file, the foundation plan, floor plan, roof framing plan with Dimensions, foundation details, and the typical section details are clearly in this drawing. Thanks for downloading the AutoCAD files from the cadbull website. Download the 2D CAD DWG file now
Uploaded by:

