G+1 Floor plan detail drawing presented in this AutoCAD drawing file. Download this 2d AutoCAD drawing file.
Description
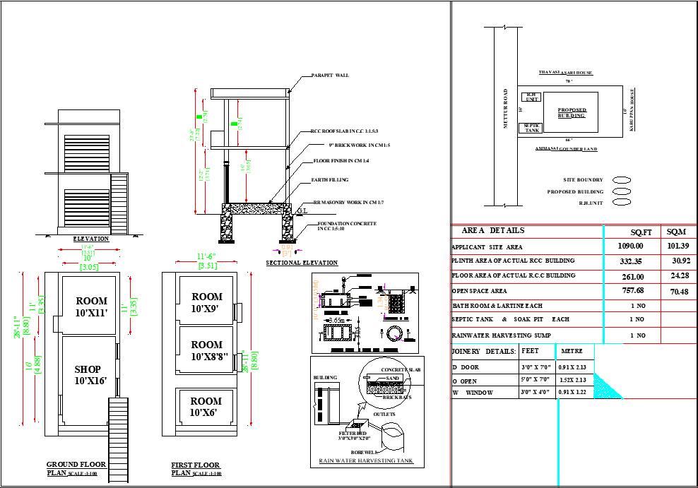
G+1 Floor plan detail drawing presented in this AutoCAD drawing file. this drawing made by a 1:100 scale. this elevation consists of door window detail and r.c.c. slab detail. dimensions are given in this file. this can be used by architects and architecture students. Download this 2d AutoCAD drawing file.
Uploaded by:

